Product Description
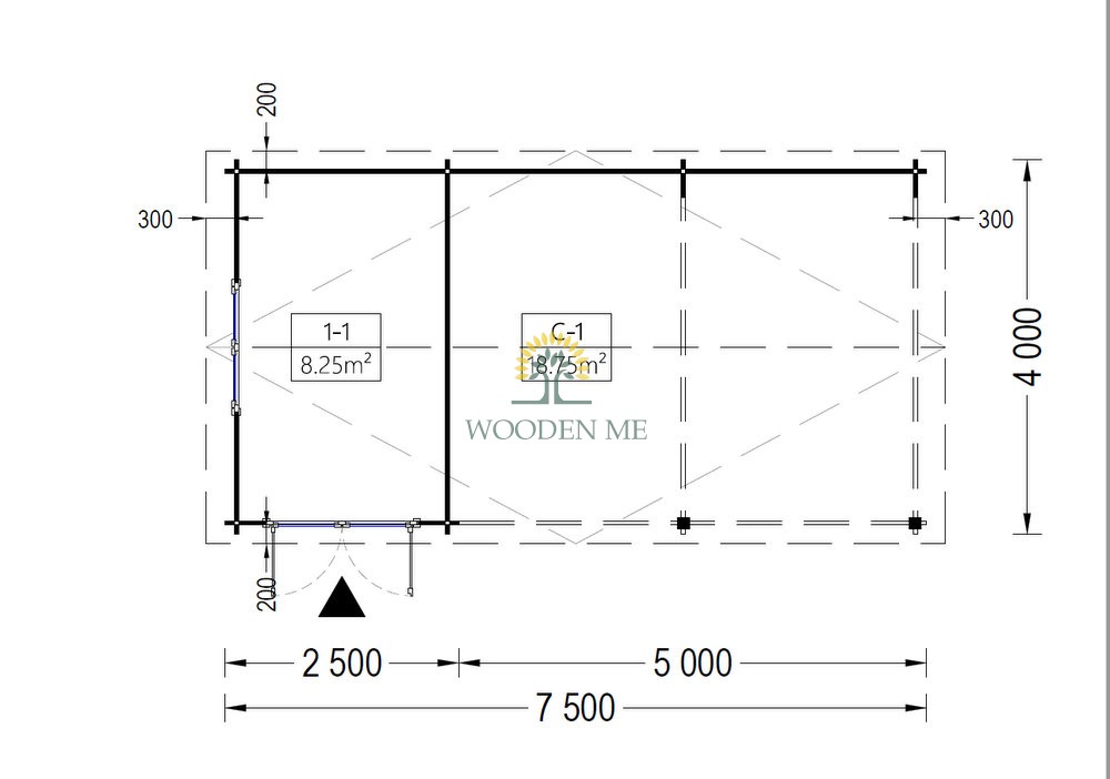
Carport with Storage Shed 30 m² (4 m x 7.5 m)
Protect your car and organize your garden equipment in one smart and stylish solution. This 30 m² carport with an integrated storage shed provides a spacious covered parking area together with a secure, lockable storage room in a single structure. In addition, we use certified Nordic pine or spruce, ensuring a strong and durable construction that performs well in demanding weather conditions.
Why Choose This Model?
- 2-in-1 solution: Park your vehicle safely while gaining valuable storage space.
- Durable natural timber: We build the structure from certified Nordic pine or spruce.
- Solid roof construction: 135 mm beams combined with 19–20 mm tongue and groove boards ensure long-lasting performance.
- Flexible roofing option: You can easily add bitumen roofing as an upgrade.
- Timeless design: The natural wood finish complements both modern and traditional homes.
Ideal For
- Protecting your car from rain, snow, and strong sunlight.
- Storing bicycles, tools, and garden machinery securely.
- Combining parking and storage in one practical structure instead of building two separate units.
Thoughtful Construction
The carport offers generous parking space, while the shed helps you keep everything organized. Thanks to the 44 mm wall thickness, you benefit from a stable and robust building. At the same time, the 12° roof pitch allows efficient rain and snow drainage. Moreover, the roof overhang provides additional protection for both the walls and the entrance area.
Specifications
| External dimensions | 400 x 750 cm |
| Minimum wall height | 209 cm |
| Ridge height | 250 cm |
| Floor area (shed) | 18.35 m² |
| Building material | Certified Nordic pine or spruce |
| Wall thickness | 44 mm |
| Roof structure | 135 mm beams; 19–20 mm tongue and groove boards |
| Roof area | 35.00 m² |
| Roof pitch | 12° |
| Roof overhang | Front/Rear – 30 cm; Sides – 20 cm |
| Bitumen roofing | Available as an optional upgrade |
| Foundation beams | 40–50 mm wooden beams (installed under the walls) |
| Door (W x H) | 1 × 161 cm x 192 cm |
| Window (W x H) | 1 × 138 cm x 105 cm |
| Layout | 2 zones (8.25 m² shed + 18.75 m² carport) |
Important Information
- You can upgrade with bitumen roofing for additional weather protection.
- We recommend installing the structure on a stable and level base for the best results.
- 📍 Free delivery to the South of England, East of England, and London area.
- 📦 Shipping to other UK regions, Scotland, or Ireland available upon request.
- 🗺️ Delivery costs outside free zones depend on postcode.
- 🚛 Delivered via export trailers due to product size and distance.
- ⚠️ No lifting service available—customers must arrange unloading.
- 💬 Terminal delivery with unloading available upon request.
- ⏱️ We strive to ensure smooth and timely delivery.
📚 Useful Resources
Video Guide: How to Mount Bitumen Shingles









































